Mateřská školka v Semilech

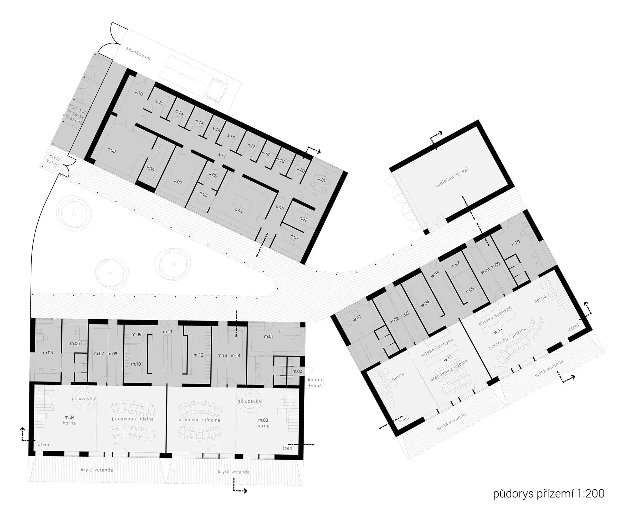
Ač se to na první pohled nezdá, návrh vychází z jediného kompaktního objemu, který je výhodný z pohledu provozních a stavebních nákladů.
Hmoty jednotlivých funkčních částí školky jsou tvarovány tak, aby poskytovaly ideální prosvětlení a přirozené provětrání vnitřních pobytových prostor dětí a zároveň rozčlenily pozemek na více různě charakteristických venkovních ploch.








